House on the Edge of the Plain_photo_Ana Skobe (3)_featured image
House on the Edge of the Plain_photo_Ana Skobe (1)
House on the Edge of the Plain_photo_Ana Skobe (2)
House on the Edge of the Plain_photo_Ana Skobe (7)
House on the Edge of the Plain_photo_Ana Skobe (4)
House on the Edge of the Plain_photo_Ana Skobe (10)
House on the Edge of the Plain_photo_Ana Skobe (12)
House on the Edge of the Plain_photo_Ana Skobe (11)
House on the Edge of the Plain_photo_Ana Skobe (13)
House on the Edge of the Plain_photo_Ana Skobe(15)
House on the Edge of the Plain_photo_Ana Skobe(16)
House on the Edge of the Plain_photo_Ana Skobe (6)
Tomaž Ebenšpanger (Skupaj arhitekti)_HIŠA NA ROBU RAVNICE_situacija
Tomaž Ebenšpanger (Skupaj arhitekti)_HIŠA NA ROBU RAVNICE_tloris
Tomaž Ebenšpanger (Skupaj arhitekti)_HIŠA NA ROBU RAVNICE_aksonometrija

Modernism on the Outskirts, House on the Edge of the Plain, Murska Sobota, Completed, 2025

The project is grounded in an understanding of the suburban fabric of Murska Sobota as a transitional condition – between city and landscape, order and dispersion, the built and the natural. The house is conceived as a sequence of low, horizontally articulated volumes that follow the horizontality of the Pannonian plain and integrate into the surrounding scale without establishing a dominant figure. The spatial organization is based on a clear and rational layout, structured through a legible tectonic order in which function directly informs architectural expression. In this, the project reflects the functionalist modernist legacy of Murska Sobota, particularly the work of Feri Novak.

    Exposed concrete incorporating locally sourced aggregate from the Mura river gravel serves as the primary mediating element between architecture and place. Material honesty, the absence of ornament, and an emphasis on structural clarity reference Novak’s rational and socially engaged architectural ethos, here reinterpreted within the contemporary context of individual dwelling. The gravel – formed through the fluvial processes of the Mura – is embedded within a contemporary structural system, endowing the architecture with a tangible memory of the landscape and grounding it materially. The house is not conceived as an object placed upon the site, but as one constituted from it: concrete becomes solidified terrain, merging modernist functional logic with the local identity of place.

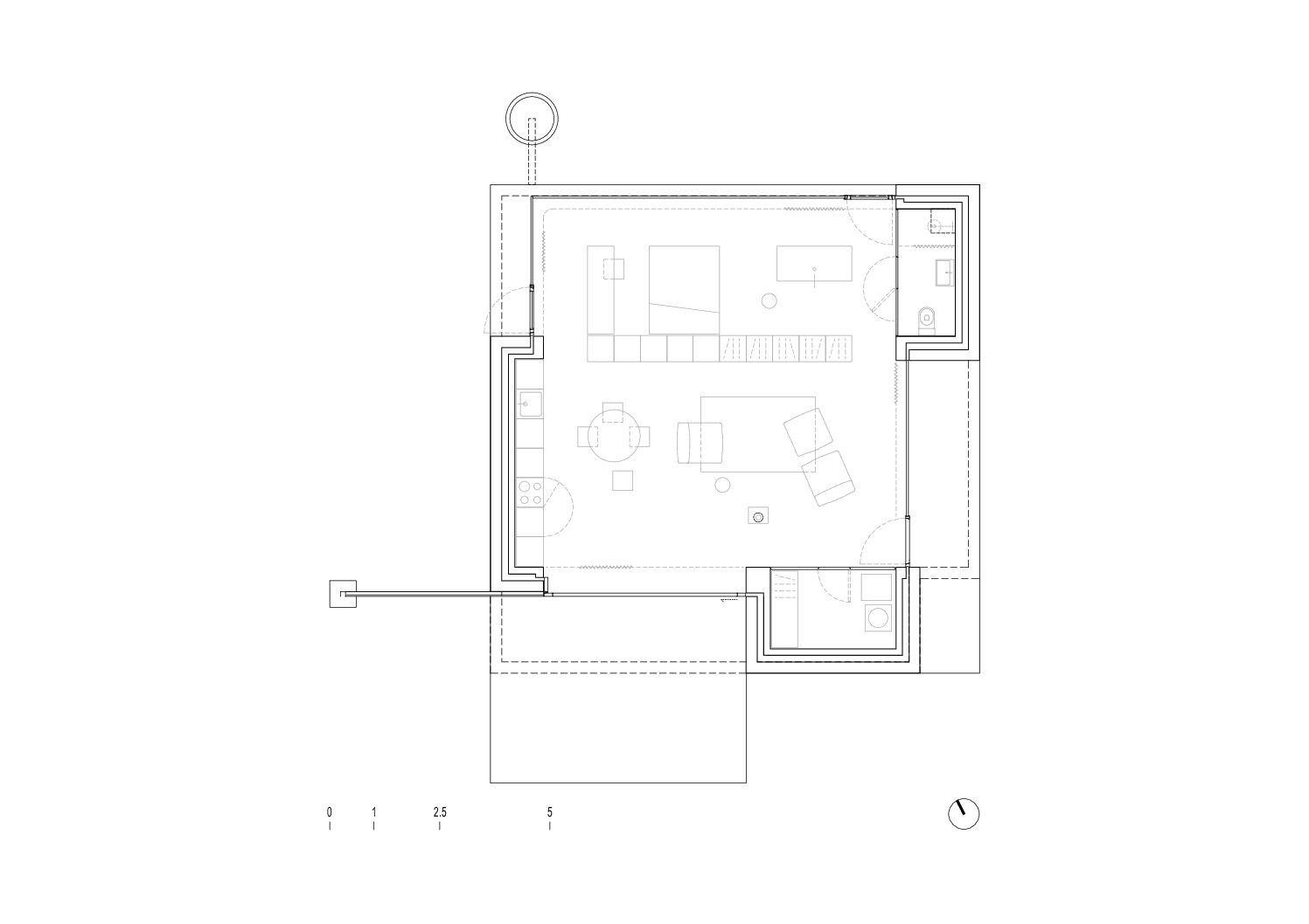
    The square plan is reduced to essentials: three enclosed service volumes set within a single, fluid living space. Locally sourced, clay-pigmented concrete – cast in rough, reused formwork – anchors the project materially and conceptually, embedding process and time into the architecture itself. The project rejects spectacle in favour of restraint, proposing the house as a quiet spatial framework for light, seasons and everyday life.

Project name: Modernism on the Outskirts, House on the Edge of the Plain  Location: Murska Sobota, Slovenia  Authors: Tomaž Ebenšpanger (UM FGPA), dr. Tanja Simonič Korošak (Landscape architecture)  Investor: Private  Type: Residential  Project year: 2025  Photographs: Ana Skobe